潔凈層流罩目前廣泛用于電子、生物、醫藥、 食品、精密儀器等行業的無塵無菌操作環境,提供局部高潔凈度工作環境。潔凈層流罩是一種可提供局部潔凈環境的空氣凈化單元,可靈活地安裝在需要高潔凈度的工藝點上方,潔凈層流罩可以單個使用,也可多個組合成帶狀潔凈區域。
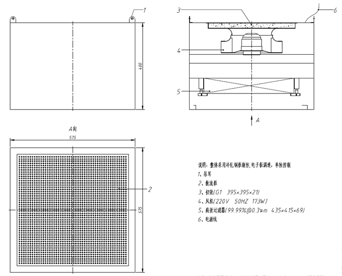
潔凈層流罩它主要由箱體、風機、初效空氣過濾器、阻尼層、燈具等組成,外殼噴塑。潔凈層流罩產品既可懸掛,又可地面支撐,結構緊湊,使用方便。

潔凈層流罩材質采用進口環保覆鋁鋅板,永不生銹,耐腐蝕,輕巧堅固,箱體采用黃金分割比例點設計,層流罩美觀大方,超薄機身厚度僅為20cm,加上高效過濾器總厚度不超過29cm;重量僅為24kg,節約空間,方便施工安裝和日常維護,層流罩風機采用意大利進口防靜電多翼式渦輪節能風機,超低噪音,風壓擴散均勻,出風面風速均勻穩定,功耗低運行成本低,工作壽命長達6萬小時以上,風機控制采用三檔調速,電路均采用電器開關控制,控制安全平穩;并預設集中控制功能。

彈性、多元化配置除標準機型外,層流罩可根據客戶需求,制作不同規格的非標產品。如:濾網種類、箱體材質等變更。人性化設計機組附裝不銹鋼把手,使搬運及安裝更為方便快捷;
潔凈層流罩結構及特點:
>>潔凈層流罩靈活地吊裝于需要高潔凈度的工藝點上方,以滿足局部高潔凈度的要求;
>>潔凈層流罩箱體可由壁板、噴塑冷軋鋼板或全不銹鋼制成;
>>潔凈層流罩有風機內裝和風機外接兩種,安裝方式有懸掛式和落地支架式兩種;
>>潔凈層流罩可單獨使用,也可多個并聯組成潔凈層流帶;
>>潔凈層流罩投資省、見效快、安裝簡便、運行費用低;
>>潔凈度:工作區內≥0.5m粒徑的塵埃≤3.5顆/升(FS209E100級);
>>噪聲:≤64 Db(A);
>>平均風速:0.3一0.55m/s;
>>潔凈層流罩與潔凈室相比,具有投資省,見效快,對廠房土建要求低,安裝方便,省電等優點。
首先必須對層流罩定期更換高效過濾器,避免污染細菌生長。
如有發現層流罩工作出現異常,請廠家注意,馬上切斷電源,并且通知有關人員立即進行維修處理;以免無意中啟動運轉,造成人身傷害。
生產車間使用溫度不得超過50℃,且嚴禁室內使用明火。
最后需要定期對層流罩電氣線路檢查,如有故障可參照電氣原理圖進行維修或者馬上聯系廠家進行上門維修。
潔凈層流罩可非標訂做!
]]>我們先了解一下層流罩的定義層流罩是能將操作員與產品屏蔽隔離的設備之一,其主要用途是避免產品污染。從潔凈室吸取的空氣,然后采用頂部增壓艙里安裝的風扇通過HEPA過濾垂直穿過操作區域,為關鍵區域提供ISO 5(級別100)的單向流空氣。廢氣從下面排出,返回潔凈室區域。它主要由箱體、風機、高效空氣過濾器、阻尼層、燈具等組成。
層流罩操作前的準備:
1、檢查層流罩應無脫落,百級層流應無明顯損壞;
2、檢查進風過濾網應清潔完好,不漏風;
3、檢查箱體有無漏風。
層流罩的操作步驟:
1、開啟層流罩風機起動按鈕,風機正常運行過程中應平穩,無異常聲響;
2、按停止按鈕停止層流罩風機運行。
層流罩操作的注意事項:
1、開啟層流罩必須確保周圍環境級別不小于十萬級,以減輕層流罩負荷,延長其壽命。
2、每三個月對層流罩進風過濾網清洗或更換一次。
層流罩操作規范的目的是為了規范層流罩操作工的日常清洗操作,保證潔凈室工作區域達到100級要求。
了解列多相關產品知識:FFU安裝條件,FFU安裝步驟
]]>